Horeca - à louer - 4020 Liège 1 200 €

Horeca - à louer - 4020 Liège
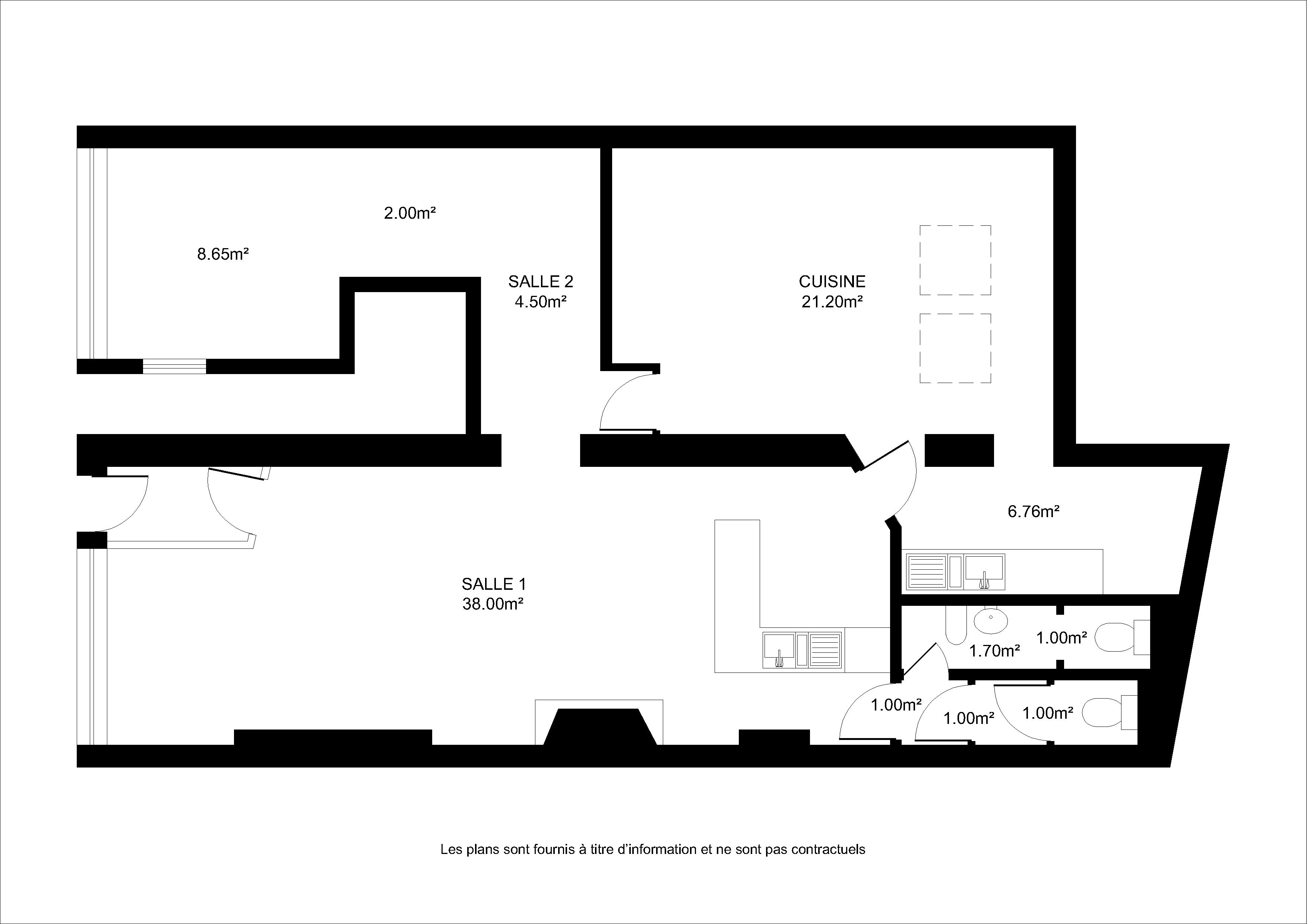
85 m²

Description

Local commercial ±85 m² – Quartier animé d’Outremeuse (Rue Roture)

Situé au cœur du quartier prisé d’Outremeuse, dans la très réputée rue Roture, ce bel espace commercial d’environ 85 m² bénéficie d’une excellente visibilité dans un environnement vivant et dynamique, connu pour sa forte concentration d’établissements Horeca.

Le bien se compose de :

  • un espace ouvert et modulable, pouvant être aménagé en deux parties

  • un bar

  • une cuisine

  • des sanitaires

Grâce à sa configuration flexible, ce local convient parfaitement pour diverses activités commerciales, notamment restaurant, bar ou concept Horeca.

Le local est proposé en l’état, laissant au futur occupant la liberté de l’aménager selon ses besoins et son concept.

📞 Informations complémentaires et visites sur demande au 0477/232.46.93

Adresse :

Rue Roture 46-48 - 4020 Liège

Documents

Général

Référence 7308447
Catégorie Horeca
Garage Non
Parking Non
Surface habitable 85 m²
Surface du terrain 106 m²
Disponibilité immédiatement

Bâtiment

Parking intérieur Non
Parking extérieur Non

Equipement de base

Accès handicapés Oui
Cuisine Oui
Toilettes H/F Oui
Double vitrage Oui
Chauffage (type) gaz (chau. centr.)

En chiffres

Surface bâtie (surf. bât. princ.) 106
Nbre de toilette(s) (nombre) 2
Largeur de la vitrine commerciale (longueur) 2.7
Largeur de façade 8.2
Cuisine (surface) 21.2 m²
Surface (m²) des toilettes H/F 5.7 m²

Divers

Surface commerciale Oui
Restaurant Oui

À proximité

Magasins (distance (m)) 550
Écoles (distance (m)) 350
Transports en commun (distance (m)) 200
Centre sportif (distance (m)) 800
Magasins Oui
Ecoles Oui
Transports en commun Oui
Centre sportif Oui
Autoroute Oui
Autoroute (distance (m)) 2200

Admin & Financier

Charges locataire (montant) 50 €
Durée du bail (nombre de mois) 12
Garantie locative (nombre de mois) 2
Loué Non
Détails charges Eau (provision)

Raccordements

Égouts Oui
Électricité Oui
Gaz Oui
Câbles téléphoniques Oui
Eau Oui

Équipements techniques

Châssis (type) bois

Spécificités terrain

Type d'environnement commerce
Type d'environnement 2 centre ville
Exposition de la façade avant est
Risque d'inondation 2023 (type innondation) Classe A (aucune chance)

Type de matériau & évaluation

Type de revêtement de sol carrelages
Prendre contact pour le bien : 7308447

* Champs obligatoires

Préférences pour les cookies

La protection de vos données personnelles est importante pour nous. C’est pourquoi nous détaillons ci-dessous les différents services et fonctionnalités du site qui utilisent des cookies et nous vous laissons décider des cookies que vous souhaitez autoriser ou refuser.

Veuillez cependant noter que si vous bloquez certains types de cookies, cela pourrait impacter votre expérience de navigation sur notre site ainsi que les fonctionnalités disponibles.

Nous utilisons des cookies fonctionnels obligatoires pour assurer le bon fonctionnement du site. Ils sont, par exemple, nécessaires pour retrouver le résultat d’une recherche ou enregistrer le choix de la langue.

Certaines fonctionnalités, comme l’affichage de vidéos ou de cartes géographiques, sont assurées via des composants externes développés par des partenaires comme YouTube ou Google. Certains composants utilisent des cookies qui sont susceptibles de permettre à ces tiers de suivre le comportement des internautes afin, par exemple, de réaliser du ciblage publicitaire. L’activation de ces fonctionnalités et des cookies associés est donc soumis à votre consentement.