Maison - à vendre - 4651 Herve À partir de 199 000 €

Maison - à vendre - 4651 Herve
2 2 90 m² 1 PEB : E

Description

Conceptimmo vous présente cette maison située sur le plateau de Herve, dans un environnement reconnu pour sa quiétude, ses paysages ouverts et son atmosphère résidentielle recherchée.

Ici, le rythme ralentit. On profite du calme, de la lumière et d’un cadre verdoyant, tout en restant à proximité des axes et des commodités. Un cadre idéal pour un jeune couple souhaitant s’installer durablement.

La maison, à moderniser, constitue une excellente base pour créer un intérieur à votre image. Elle développe environ 90 m² habitables sur une parcelle de 274 m².

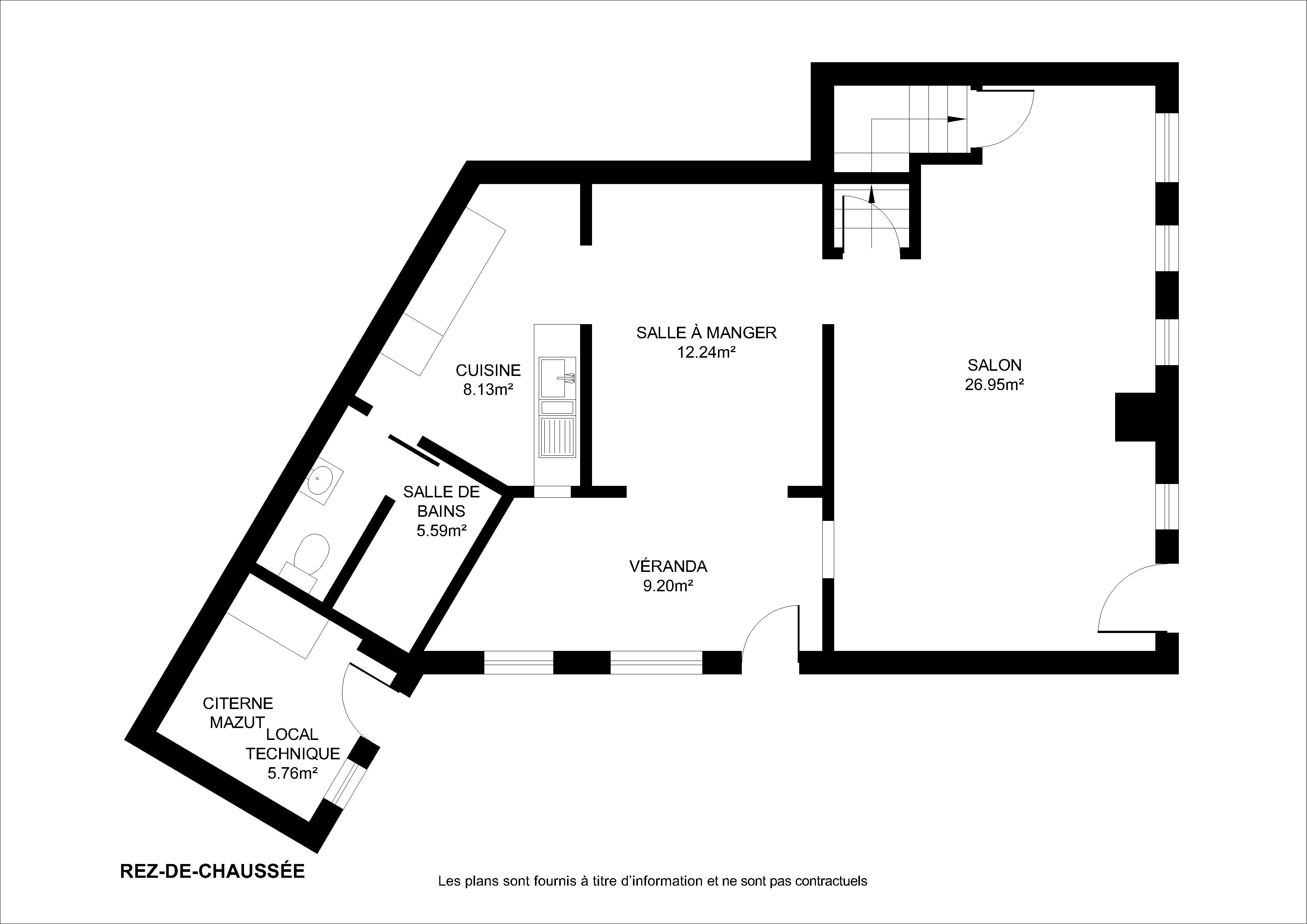
Au rez-de-chaussée :

  • Séjour lumineux

  • Salle à manger

  • Cuisine

  • Véranda

  • Salle de bain

À l’étage :

  • Deux chambres confortables

Le bien dispose également d’une cave et d’un grenier.

À l’extérieur, vous profitez d’un jardin agréable et d’une terrasse propice aux moments de détente.

Garage à reconstruire

Un potentiel d’évolution rare

Le véritable atout du bien réside dans son terrain latéral. Cet espace offre de réelles perspectives d’aménagement : extension de l’habitation, création d’un garage, espace professionnel ou autre projet personnalisé, sous réserve de vérification auprès des services de l’urbanisme.

Un avantage précieux pour un jeune couple qui souhaite acquérir un premier bien tout en gardant la possibilité de le faire évoluer dans le temps.

Équipements

  • Panneaux photovoltaïques

  • Châssis bois double vitrage

  • Électricité conforme

  • Chauffage au mazout

  • PEB : E – 344 kWh/m².an – n°20251210011586

Une opportunité rare d’allier cadre de vie paisible et potentiel de valorisation dans un quartier apprécié.

Faire offre à parti de 199.000€

Le propriétaire, vendeur du bien, dispose de la faculté, de manière totalement libre et autonome, de vendre ou de ne pas vendre. S’il décide de vendre, il n’est nullement tenu de retenir l’offre la plus élevée. Il choisit celle qui lui convient le mieux au regard de ses propres critères (montant, conditions suspensives, etc.).

– Infos & visites : 0477/23.46.93

Adresse :

Chemin du Bayon 18 - 4651 Herve

Documents

Général

Référence 7577755
Catégorie Maison
Meublé Non
Nombre de chambres 2
Nombre de salles de bain 1
Jardin Oui
Surface du jardin 158 m²
Garage Oui
Terrasse Oui
Parking Non
Surface habitable 90 m²
Surface du terrain 274 m²
Disponibilité immédiatement

Bâtiment

Année de construction 1850
Nombre de garage 1
Parking intérieur Non
Parking extérieur Non
Type de toit en pente

Nom, catégorie & situation

Nombre d'étages 2

Equipement de base

Accès handicapés Non
Cuisine Oui
Ascenseur Non
Double vitrage Oui
Chauffage (type) mazout (chauf. centr.)
Type de cuisine amer. semi-équipée
Sdb (type) douche
Double vitrage (type) isol. thermique

Spécificités terrain

Orientation du bâtiment (façade arrière) nord
Type d'environnement campagne
Type d'environnement 2 calme
Exposition de la façade avant sud-est
Risque d'inondation (type innondation) pas situé en zone inondable
Risque d'inondation 2023 (type innondation) Classe A (aucune chance)

En chiffres

Largeur front de rue 18
Surface bâtie (surf. bât. princ.) 85
Nbre de toilette(s) (nombre) 1
Nombre de sdd 1
Chambre 1 (surface) 12.31 m²
Chambre 2 (surface) 15.8 m²
Largeur de façade 8
Nbre de terrasse(s) (nombre) 1
Salle de séjour (surface) 27 m²
Salle à manger (surface) 11.71 m²
Cuisine (surface) 8.87 m²
Orientation de la terrasse 1 sud-ouest

Divers

Véranda Oui
Grenier Oui
Cave Oui

À proximité

Magasins (distance (m)) 1700
Écoles (distance (m)) 2900
Transports en commun (distance (m)) 600
Centre sportif (distance (m)) 2800
Magasins Oui
Ecoles Oui
Transports en commun Oui
Centre sportif Oui
Autoroute Oui
Autoroute (distance (m)) 2800

Cadastre

Section D
Numéro (n°) 849/B 850/D
Surface (ha/a/ca) (surf. (ha/a/ca)) 3a 61ca
Revenu cadastral (€) (montant) 382 €

Raccordements

Égouts Oui
Électricité Oui
Télévision par cable Oui
Câbles téléphoniques Oui
Eau Oui

Équipements techniques

Châssis (type) bois

Caractéristiques Principales

Surface de terrasse 1 10 m²

Certificats énergétiques

Label PEB (classe) E
PEB E-SPEC (kwh/m²/an) 344
Emission CO2 (émission CO2) 85
E total (Kwh/an) 344
PEB code unique 20251210011586
PEB valide jusqu'au (datetime) 10/12/2035
Date du PEB (datetime) 10/12/2025
Prendre contact pour le bien : 7577755

* Champs obligatoires

Préférences pour les cookies

La protection de vos données personnelles est importante pour nous. C’est pourquoi nous détaillons ci-dessous les différents services et fonctionnalités du site qui utilisent des cookies et nous vous laissons décider des cookies que vous souhaitez autoriser ou refuser.

Veuillez cependant noter que si vous bloquez certains types de cookies, cela pourrait impacter votre expérience de navigation sur notre site ainsi que les fonctionnalités disponibles.

Nous utilisons des cookies fonctionnels obligatoires pour assurer le bon fonctionnement du site. Ils sont, par exemple, nécessaires pour retrouver le résultat d’une recherche ou enregistrer le choix de la langue.

Certaines fonctionnalités, comme l’affichage de vidéos ou de cartes géographiques, sont assurées via des composants externes développés par des partenaires comme YouTube ou Google. Certains composants utilisent des cookies qui sont susceptibles de permettre à ces tiers de suivre le comportement des internautes afin, par exemple, de réaliser du ciblage publicitaire. L’activation de ces fonctionnalités et des cookies associés est donc soumis à votre consentement.